ateliershantanuautade
VOID ENVELOPE. | 2017 | INSTITUTION-HOSPITAL, RESIDENTIAL
VOID ENVELOPE. | 2017 | INSTITUTION-HOSPITAL, RESIDENTIAL

“The room is the beginning of architecture” – Louis Kahn.


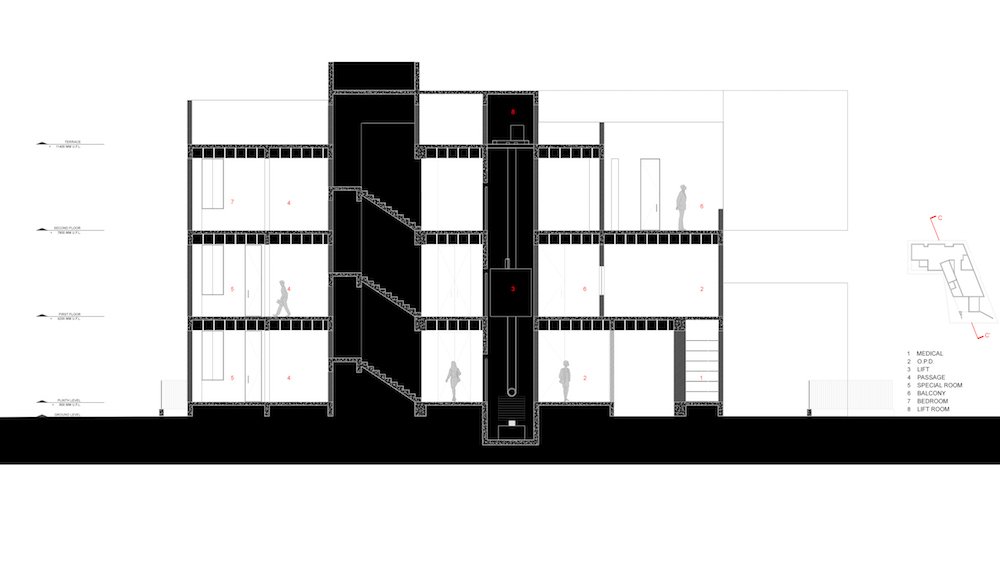
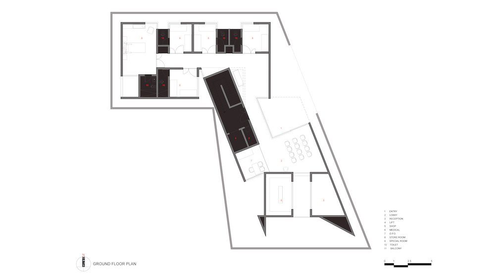
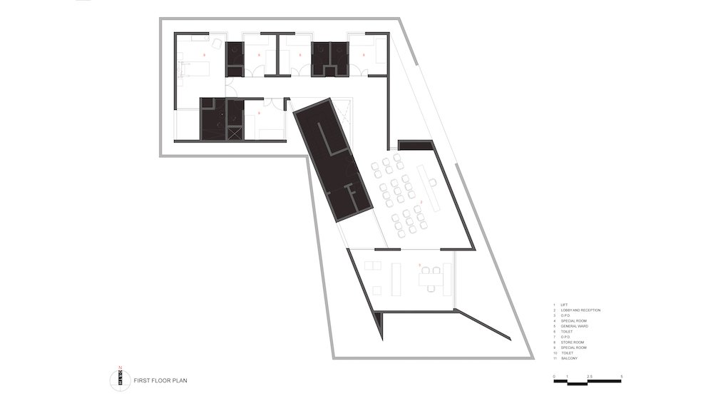
While talking about a room, it is always a resultant of a void created in built mass. Talking about the building the whole process of the building started with the unique phenomena of void for the creation of an envelope. The whole building bearing in mind, the idea of constant search historical roots. History signifies a role of a place making, this project particularly talks about architecture of subtraction influenced by cave architecture where a habitat formed by voids an architecture appears like a crafted space. The sculptural condition that results in construction of carved spaces in constant relation between empty and full. This mechanism conceptually pierces the space. In this project we brewed a search for a recognizable historical identity with unitary, monolithic nature of a built volume, regardless of what happens inside or outside.


Inside and outside are related by sensation of empty and full, between experience and space. The building talks about the phenomena of absence, not the sculptures phenomena excavated space, like Eduardo Chilida or Jorge Yazpik, but rather the phenomena of subtraction, the meaning of void, a phenomena that is not only sculptural but also tries to define the value of architecture.


The void is the center where life begins, where humanity exists. Actually the void that we see has no sculptural meaning. It is an architectural void. Ultimately it has to do with a question emerged, what is the nature of empty space that human habitats? Space is perspective and conceived in from the boundary.


Like to achieve, when we draw a building is to make it part of that void. What the architect builds are boundaries to spaces and since we have exploited this identity of a boundary to an extent to form an identity of a void creates a void envelope.


VOID ENVELOPE. | 2017 | INSTITUTION-HOSPITAL, RESIDENTIAL