ateliershantanuautade
LANTERN HOUSE | 2018 | RESIDENTIAL
LANTERN HOUSE | 2018 | RESIDENTIAL

Is a house placed in Pohegaon village, is a part of series where it conceives it being an appropriate typology where one needs to find an appropriate response with immerging identity of the houses many times influenced by the imagery of urban house. The vocabulary of this house stared with the quest to the identity of a house where this house is explored to form a new wave towards new definition to the house, where the identity d the house will be governed by understanding the symbolism of the place. Understanding village culture and understanding the larger network of the system. Talking about this house appears impervious from roadside while it appears porous form and agrarian side.


To increase the porosity the identity of house more as a transparent one from the farm side. These transparencies get illuminated during the night time, where the house appears to be a lantern at night. Hence we termed it as lantern


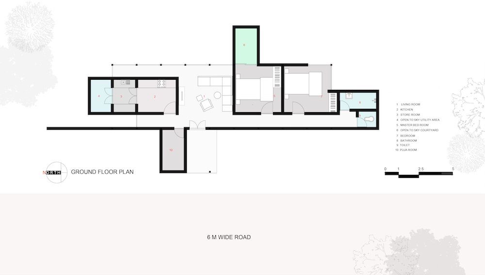
Keeping the privacy of the bedroom intact this house opens into a courtyard where as the other one has a corner bedroom, which gives privacy as well as participation with nature. House is made such that it spreads inside the living space of the house while we could only see an entry of this house from a blank facade the entrance side. This house is planned such the living space divides all the private spaces like bedroom, washroom etc. where the house could be used in various manner with a different usability. This house shows an existence of duality together.


LANTERN HOUSE | 2018 | RESIDENTIAL